- Edificio de 28 viviendas, comercial y dos sótanos garaje
- Catarroja – Valencia
- Fecha de proyecto: 2.003
- Promotor: Futur Habitat SA
- Arquitecto: daia arquitectes slp
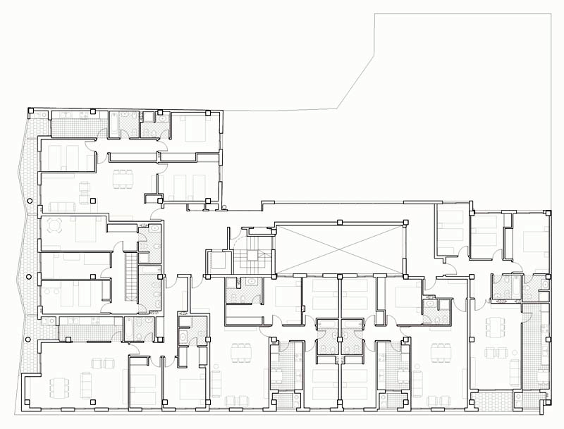
El solar se encuentra en la esquina de una manzana del ensanche de la ciudad de Catarroja. Mediante un Estudio de Detalle, se reduce la excesiva profundidad edificable del planeamiento, a catorce metros y medio, de modo que las viviendas dispongan de dos fachadas opuestas lo que mejora las condiciones de iluminación y ventilación.
La calidad del revestimiento de paneles de aluminio, así como la sobriedad de la composición de las fachadas, aseguran la permanencia del edificio.






