- Reparaciones y consolidación del Palau de la Vila
- Ontinyent – Valencia
- Fecha de proyecto tercera fase: 2.005
- Promotor: Ajuntament d´Ontinyent
- Arquitecto: daia arquitectes slp
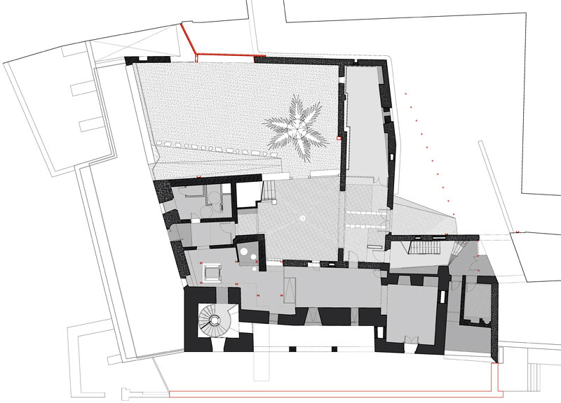
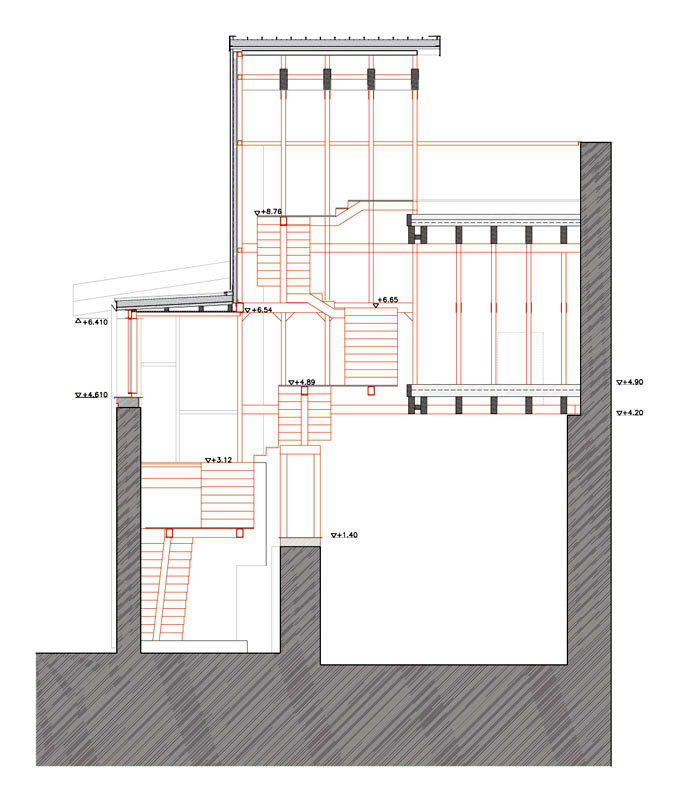
La fundación del antiguo alcázar se realizó durante la dominación musulmana en el extremo más débil del recinto histórico. Debido al proceso de demoliciones, ampliaciones y reconstrucciones que partes del edificio han sufrido su conocimiento, más allá de lo visible, proviene de las dos fases de intervención precedentes -2000 y 2005.
Gracias a ello ha sido posible clasificar sus muros con relación a la época de su construcción. Sin embargo la información reunida no permite establecer hipótesis de cómo fue; pues el edificio ha tenido aspectos diferentes vinculados con su uso y la moda de la época.
El objeto de la intervención ha sido la preservación de las principales características, que lo datan, dentro de un nuevo sistema de coherencia motivado por su estabilización y por la incorporación del equipamiento requerido para su uso como dependencias municipales. La limitada gama de materiales así como su sintaxis: madera, acero, cristal y linóleo ha sido uno de los instrumentos elegidos, tanto porque son apropiados para el carácter del edificio como por su disponibilidad.
La tercera fase, que comprende el total de las construcciones, finalizó el veintinueve de Julio de dos mil diez. Ha sido un largo proceso desde el inicio de la primera fase, en el año dos mil, durante estos diez años el antiguo Palau se ha recuperado lo que implica un episodio más en su larga vida.
















