- Vivienda unifamiliar aislada
- El Plantio – Paterna – Valencia
- Fecha de proyecto: 2.007
- Promotor: Vicente Minguet Blanco
- Arquitecto: P. Martínez Perelló / daia arquitectes slp
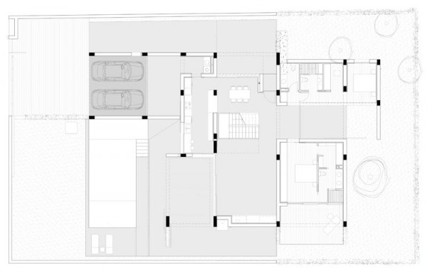
En una parcela rectangular y dentro de la pinada del Plantío se ubica la casa. Una vivienda unifamiliar resuelta, en su mayor parte, en planta baja.
Casa y parcela constituyen un único organismo; los muros del vallado crean pequeños patios y espacios exteriores cuyo tratamiento se cualifica en función a las estancias a las que se vinculan: ajardinados o pavimentados, abiertos o cubiertos.







