- Edificio de 107 VPO, bajos comerciales y sótano garaje
- Catarroja – Valencia
- Fecha de proyecto: 1.999
- Promotor: Futur Habitat SA
- Arquitecto: daia arquitectes slp
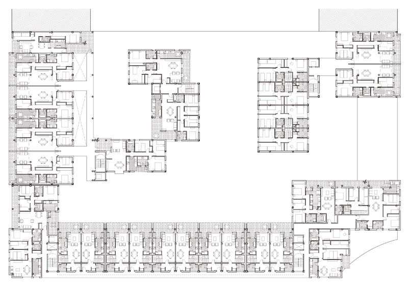
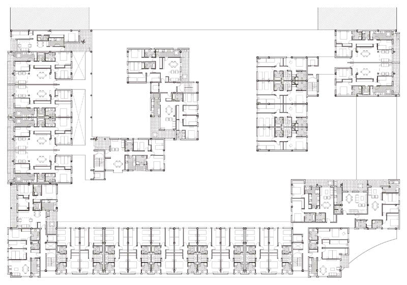
El edificio ocupa la mitad de una manzana del ensanche de la ciudad de Catarroja. Con objeto de obtener unos tipos de vivienda más adecuados se reducen las profundidades que el Plan establecía; incrementando la ocupación y altura para equilibrar la edificabilidad. Pese a la fragmentación, se mantiene la morfología de manzana y calle.
Las viviendas se vuelcan al espacio interior, que actúa como acceso principal y desde el cual se accede a los distintos bloques. La respuesta a la orientación, determina la posición de las circulaciones, accesos y viviendas.
La apertura de la fachada Oeste así como las articulaciones entre bloques permiten entender la autonomía de la intervención respecto a la morfología establecida en el planeamiento. La utilización del mismo material, ladrillo visto, y elementos compositivos favorece la visión secuencial en la que todos los frentes adquieren un papel equivalente.




