- Edificio de 54 viviendas, bajos, entreplanta y dos sótanos diáfanos
- Parc Central Torrent – Valencia
- Fecha de proyecto: 2.005
- Promotor: Construcciones Proalba SL
- Arquitecto: P. Martínez Perelló / daia arquitectes slp
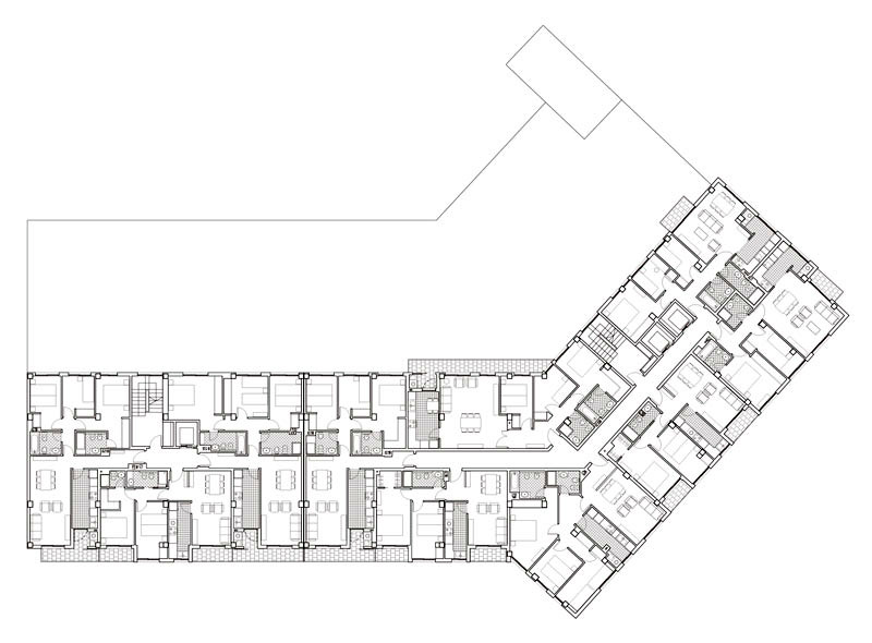
El edificio ocupa un fragmento de una manzana en el ámbito del Parc Central de Torrent. La manzana se configura mediante un bloque perimetral de 13 m de profundidad, que no llega a cerrarse en su totalidad, dejando visto el patio interior de manzana.
La traza quebrada del bloque, da sentido a la composición por bandas horizontales de ladrillo visto blanco, alternadas con la fenestración de aluminio.
Se reducen los núcleos de comunicación vertical a dos, sin renunciar a la variedad tipológica. La sección incorpora programas de garaje en el sótano, terciario en planta baja y entreplanta, y residencial en plantas superiores.





