- Proyecto básico y ejecución de 32 VPO y 8 VL, bajos comerciales, entreplanta y dos sótanos garaje
- Parc Central Torrent – Valencia
- Fecha de proyecto: 2.007
- Promotor: Futur Habitat SA
- Arquitecto: daia arquitectes slp
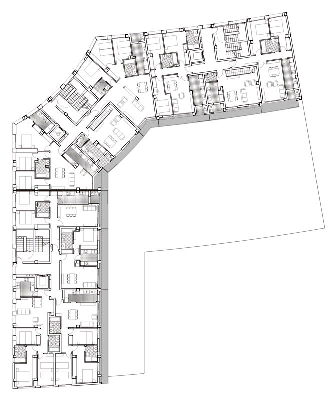
El edificio ocupa la esquina de una manzana en el ámbito del Parc Central de la ciudad de Torrent. Las alineaciones que el planeamiento establece se originan a partir del crecimiento circular de la rotonda central de tráfico; así la geometría de las parcelas adopta la forma de rectángulos de lados curvos, una simple retícula en crescent, que en su división presenta viviendas con fachadas de anchos diferentes.
Nuestro edificio incorpora un fragmento del espacio libre interior de la manzana, desde el que se accede a todas las viviendas. La profundidad del bloque permite la obtención de viviendas pasantes. Para la materialización del edificio se utiliza una combinación de piedra arenisca y estuco.




