- Instituto Enseñanza Secundaria La Plana – Adecuación y ampliación: 24SO+8B(A+C+H)+CAF+VIV+GIM
- Castellón de la Plana – Castellón
- Fecha de proyecto: 2.006
- Promotor: CIEGsa
- Arquitecto: daia arquitectes slp
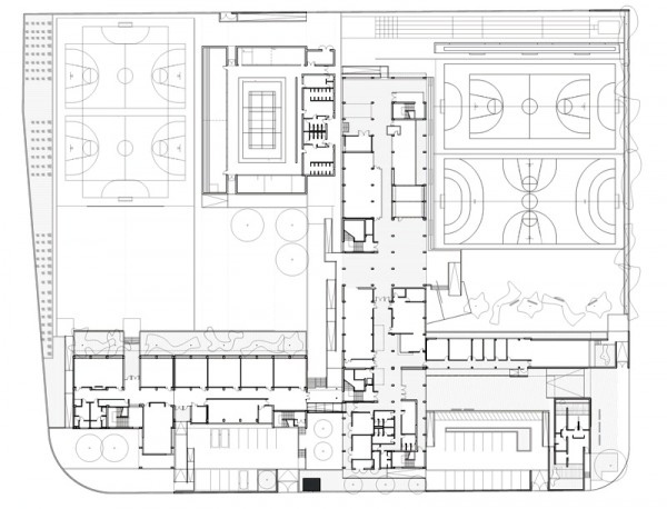
La disposición del edificio aulario inicial y a su vez la posición de la escalera vinculada al vestíbulo principal, permite la ampliación del edificio con un mínimo esfuerzo, asegurando el control del programa y las circulaciones.
El programa requerido para la ampliación se desarrolla en un nuevo bloque, perpendicular al edificio aulario de la primera fase, conectado mediante una pasarela-puente a la escalera principal.
Se mantiene la tipología de corredor a dos manos, así como los materiales de construcción usados anteriormente. No hay distinción entre proyecto inicial y ampliación. Ambas fases constituyen un solo edificio.














