- Instituto Enseñanza Secundaria La Plana: 12SO+4B+JPV+CAF+VIV
- Castellón de la Plana – Castellón
- Fecha de proyecto: 2.000 – 2.004
- Promotor: Consellería de Educación y Ciencia
- Arquitecto: daia arquitectes slp
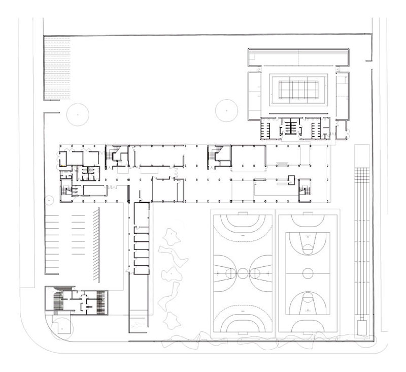
Como estrategia de implantación, se intenta la concentración de usos en el menor número de edificios posible. Se proponen tres elementos articulados y relacionados entre sí, que incorporan la totalidad del programa: Edificio aulario, Administración y Vivienda del Conserje y Gimnasio.
Los materiales empleados en su construcción son el hormigón visto de modo genérico y para las plantas superiores del aulario, una fachada ventilada realizada con piezas de cerámica extruída tipo “bardeaux”.
La disposición de la edificación atiende a la configuración y equilibrio de los diversos usos del programa exterior: acceso, pistas deportivas y áreas de juego,…. El edificio principal aulario resuelto mediante corredor central, con una anchura suficiente para permitir la ubicación de servicios y huecos, incrementando así la relación espacial de las circulaciones y la relación social de los alumnos.













